【マンションマニアプロデュースの売却サービス】
囲い込みなしをお約束いたします!!☆売却物件募集中☆

※YouTube動画の文字起こしverです
どうも!マンションマニアです!
ここ最近は若年層におすすめできる新築マンションがかなりのかなり減ってきています。
初任給が上昇傾向であるとはいえそれ以上にマンション価格が上昇、与信が高まる入社2年目~3年目での購入が容易ではなくなっています。
ただ、そんな中でも『坪単価が上昇傾向』であることと『単身者のニーズも高い』ことから新築マンションでも1LDKの供給自体は多いですね。
もちろん、基本的には『1Rだらけの投資系マンション』や『ボリュームゾーンが1LDK』のマンションはできるだけ避けて『大規模マンションの中の1LDK』や『1LDK~3LDK混在』のマンションを選ぶべきですからそちらに絞ると数は少なくなります。
一般的に分譲マンションというのはボリュームゾーンの価格帯を検討する方が満足できるようにつくるため大規模マンションの1LDKや3LDKなどで億超え住戸がある中での1LDKのほうが満足度が高くなる傾向にあります。
維持費に関しても㎡割のため広い部屋がいてくれたほうが1LDK組にとってはコストパフォーマンスが高いです。
さらに1LDKとなればいつか手放す可能性も高いわけでそのような条件が揃うマンションのほうがリセールバリューも期待できますから安心して購入することができるでしょう。
現在も販売されている新築マンションとしてはあくまで一例ですが
パークホームズ浅草橋
パークホームズ東陽町
晴海フラッグ スカイデュオ
プラウド元住吉ウエスト
プラウドタワー相模大野クロス
パークタワー向ヶ丘遊園
などが『若年層でもなんとか手が届きやすい価格帯』×『好条件が揃うマンションの1LDK』と言えるでしょう。
マンションの規模感もありますし、当然ながら立地も良いですから社会人数年目でのとりあえずの1戸目、いわゆる初のポジションセット物件としては魅力が大きいことでしょう。
ただ、スカイデュオの2LDK(1LDKは完売)を除けば1LDKですし、1LDKと言っても30㎡台が基本であるなど1R賃貸よりかは広いですが『本当はもっと広い部屋が良かったけどそこは呑むことにした』となる方ばかりでしょう。
私自身も社会人2年目(高卒なので20歳の時)で購入していますが広さはマストであったため70㎡弱×3LDKの新築マンションを購入しました。
予算としては当時の金利で3000万円弱、今の金利でいくと4300万円前後で同じ支払い額となります。
変動金利の大元の数字はほぼ動きがないのですが当時は当初3年間のみ金利優遇でその後は元に戻ってしまったり、長期固定金利は3%ほどであるなど今とは比べ物にならないくらいの実質の金利差ですから当時3000万円弱借りるのと今時点で4300万円を借りるのとではほぼ同じ支払い額となります。
もしも当時と同じ年収で今時点で私が二十歳であった場合の予算は4300万円前後ということになります。(私が勤めていた会社も当時よりは初任給の条件が良いみたいではありますがそれでも5000万円は容易でない)
もちろんそれは背伸びをしているほうですが若いからこそできる背伸びとも言えるでしょう。(基本的にはお給料の上昇カーブが大きい)
そんな中で広さも求める私みたいな人は選べるマンションがとても少ない時代です。
なんでもよければありますが満足度の高さに期待ができてリセールバリューの高さにも期待ができるとなれば天然記念物レベルで見つけるのが難しいです。
駄菓子菓子!!
いや~きましたね~!!
幕張ベイパーク ライズゲートタワーの北向きがお安い価格で供給されます!!
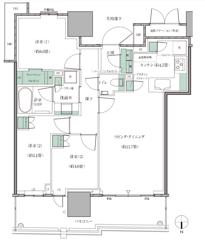
N71Aタイプ 3LDK 71.06㎡
2階 4270万円 坪単価198万円
3階 4300万円 坪単価200万円
4階 4330万円 坪単価201万円
5階 4360万円 坪単価202万円
6階 4380万円 坪単価203万円
7階 4400万円 坪単価204万円
8階 4420万円 坪単価205万円
9階 4440万円 坪単価206万円
10階 4460万円 坪単価207万円
11階 4480万円 坪単価208万円
12階 4500万円 坪単価209万円
13階 4520万円 坪単価210万円
14階 4540万円 坪単価211万円
15階 4560万円 坪単価212万円
16階 4580万円 坪単価213万円
17階 4700万円 坪単価218万円
18階 4720万円 坪単価219万円
19階 4740万円 坪単価220万円
■5階 4330万円の部屋を購入した場合
住宅ローン:月額約111000円 ※変動金利35年フルローン
管理費&修繕積立金:月額26720円
合計:月額約138000円
5年後のローン残債:約3770万円
10年後のローン残債:約3170万円
15年後のローン残債:約2560万円
JR京葉線の海浜幕張駅から徒歩14分(新改札)と駅距離はありますが駅前に住宅が建設できない街ですから駅前マンションは存在しません。
駅前には商業施設やオフィス、そこから大きな公園を挟んで住宅街となる街です。湾岸道路を超えないと戸建も存在しないため近郊・郊外あるあるの戸建とのバッティングも避けることができます。
大手デベがマンションをつくるだけではなく街をつくっているため街の中に日常使いしやすいスーパーマーケットやコンビニ、クリニックモールも誘致してくれています。
タワマンが6棟立ち並ぶことにはなりますが中央に公園を配しているため離隔もとれており圧迫感がないのも駅から離れたからこその贅沢と言えるでしょう。
そんな幕張ベイパークも中古市場では当たり前のように5000万円どころか6000万円を大きく超えて取引されています。仮に上記の部屋を借りようとすれば22万円はする相場です。(賃料相場も高い)
もちろん北向きだからお安いわけですがパークビューですから条件が苦しくありません。むしろ順光で照らされた公園を望めるとなれば気持ちの良い眺望でしょう。夜になると向かいのタワマン夜景が程よい距離で見えてきます。各街区足元のゆとりやライティングにもこだわってくれているため日中だけでなく夜も楽しい眺望であると。
広さを求めないのであれば先述べたように他の選択肢もありますし中古OKであれば世界も広がりますがそれでも4000万円台前半でこれだけ条件良いマンションを購入するのはとてもとても難しい時代です。
24時間有人管理&コンシェルジュサービス、ディスポーザー、各階ごみ置場、免震などなどタワマンスペックでありながらも自走式立体駐車場多めであることも活かされた抑え目の維持費。
社会人数年目で手付金の交渉が難しい物件となれば手持ち資金でつまずいてしまう方も多いでしょうけども…
いや~私が今時点で社会人数年目であれば間違いなくこちらを選んでいます。
満足度が高いだけでなくどうにでもなりますもの。広さを求める方の初のポジションセットとしては4000万円台前半ではこれ以上の出物はないでしょう。
もちろん通勤先や通勤頻度などによっては選べない方もいるでしょう。そのような方にまでおすすめするというわけではまったくもってありません。
ただ、逆に在宅勤務多めであればこの広さは武器になることでしょう。
単身者だけでなく若年層の新婚さんなどにもたまらなくおすすめしやすいです。
新築マンションの供給が減っている時代、そして大量供給時代のマンションの築年数がどんどんとっつきにくくなっていく時代においては築浅ということも大きなストロングポイントになってきます。
今時点の検討者よりも10年後の検討者のほうが築浅を見つけることが困難であることは容易に想像できます。
さらにライズゲートタワーは幕張ベイパーク内でも若さを活かせる(1棟目とは約7年差)ためベイパーク内での中古市場においても選ばれやすいことでしょう。
もちろん分譲棟の中では一番駅から遠いことはウィークポイントではありますがさすがにこの広さをこの単価帯で購入しておけば間違いないと思います。
どうにか手にしていただきたい出物です!!
『若いうちに購入はしたいけど幅広く提案してほしい』という方はぜひ個別相談会へご参加ください!!
お若いうちのポジションセット、強く!強く!強く!おすすめですよ!!
マンションマニアとの個別相談予約フォーム
引き続きよろしくお願いいたします。
【マンションマニアに個別相談できます!】
☆対面・オンラインでの個別相談件数が2100組様を超えました!!☆(2024年3月24日時点)
ご相談お待ちしております!!
マンションマニアへ購入・売却相談をご希望の読者様へ ~問い合わせ方法~

※お急ぎのご相談は枠外対応が可能な場合がございます。大変お手数ですが店舗までお問い合わせお願いいたします。
【投資相談専任アドバイザーお刺身おじさんに個別相談できます!】

※お急ぎのご相談は枠外対応が可能な場合がございます。大変お手数ですが店舗までお問い合わせお願いいたします。
マンションマニア公式YouTubeチャンネル
マンションマニア公式Twitter
マンションマニア公式インスタグラム
【関連記事】
幕張ベイパーク 2024年6月時点の相場 B-6街区も始動【マンションマニア】
スムログ記事
- 幕張ベイパーク ライズゲートタワー第一期抽選会直後の相場【マンションマニア】
- 若者よ!!動くのだ!! 幕張ベイパーク ライズゲートタワーの北向き住戸販売開始へ【マンションマニア】
- 幕張ベイパークライズゲートタワー 第3期1次の抽選会へ参加してきました!【マンションマニア】
- お便り返し その1124「2022年に千葉県で中古マンションを購入 東京都で買えばよかったと後悔が大きいです」【マンションマニア】
- 幕張ベイパーク 2025年3月時点の相場 中古の在庫も減少… 【マンションマニア】
- マクドナルド幕張ベイパーク店オープン!!幕張ベイパーク 2025年8月時点の相場【マンションマニア】
- ミルキー並木の夢にむかって頑張る日記 第十三話「47歳になりました!40代後半からの住宅ローン戦略」
スムラボ記事
- 【幕張ベイパークライズゲートタワー】2期2次の北向き抽選祭りの部屋はお得か?現在の抽選倍率は??【すごろく】
- 幕張ベイパーク ライズゲートタワーの現地訪問【住井はな】
- 【幕張ベイパークライズゲートタワー】現地訪問レビュー(キットキャット)
- 幕張ベイパークに1年住んでみて【yossy】
- 幕張ベイパークは今後値上がりしていく?ライズゲートタワーはどうなる?【2LDK】
- 【内覧会訪問&対談】幕張ベイパーク ミッドスクエアタワーの内覧会に2LDKさんと参加!4棟目のライズゲートタワーへの期待感は?!【前編】
- 【遠征】【幕張ベイパークライズゲートタワー】徹底検証!1期より値上げした2期販売価格はお得?!【すごろく】
- ライズゲートタワー モデルルーム訪問レポート【2LDK】
記事に出てきた物件の掲示板
- パークホームズ東陽町(検討スレ) | (まとめ) | (スムログ) | (スムラボ)
- プラウドタワー相模大野クロス(検討スレ) | (住民スレ) | (まとめ) | (スムログ) | (スムラボ)
- 幕張ベイパーク ライズゲートタワー(検討スレ) | (住民スレ) | (まとめ) | (スムログ) | (スムラボ)
- プラウド元住吉ウエスト(検討スレ) | (まとめ) | (スムログ)
- パークホームズ浅草橋(検討スレ) | (住民スレ) | (まとめ) | (スムラボ)














コメントを残す