幕張ベイパークミッドスクエアタワーの第二期が販売開始となりました!
受付期間:2022年5月13日(金)~2022年5月20日(金)
抽選日:2022年5月20日(金)
抽選時間:15:30
販売戸数:103戸
販売価格:4670万円(1戸)~6680万円(1戸)
最多販売価格帯:5200万円台(18戸)
間取り:3LDK(95戸)・4LDK(8戸)
専有面積:70.34㎡(3戸)~98.51㎡(4戸)
(※編集部追記:[掲示板] 幕張ベイパークミッドスクエアタワー)
低層階の一部も販売開始となっており平均坪単価約230万円と今の時代にしては買いやすい価格帯の新築マンションです。価格だけでなく免震、自走式立体駐車場、24時間有人管理、コンシェルジュサービス、各階ごみ置場、基本天井高2600mmなどなどスペック面も千葉物件としては高いのも魅力の一つです。
海浜幕張エリア全体としては2023年春頃開業予定の京葉線新駅「幕張豊砂」も楽しみですし、幕張ベイパーク側ではまだ計画・設計準備段階ではありますが海浜幕張駅の新改札口、千葉市立海浜病院の移転、小学校新設などここからの数年でも街が大きく変わっていきます。
幕張ベイパーク内としては高級シニア向けレジデンスの(仮称)パークウェルステイト幕張計画も楽しみですね。幕張ベイパーク内の建物で一番つくりこむ(少なくとも今時点では)というのは三井らしいと言いましょうか…分譲棟だってかっこいい建物ですけどパークウェルステイトは別格でしょうね…完成した際に何も知らずに幕張ベイパークへ訪れた人はパークウェルステイトを指さして「ここに住みたい!!」となることでしょう。苦笑
とはいえ幕張ベイパーク内の分譲棟にお住まいの方にもパークウェルステイトができるメリットはあります。パークウェルステイトをつくるということはそこにお客さんを呼び続ける必要があります。幕張ベイパークという街が賑わいを失ってしまっては三井としても商売になりませんから(駅前のアウトレットの借地も更新しました)完成後も住民と共に街の経年優化を支えていくということは確かでしょう。
これは柏の葉キャンパスにホテルと賃貸棟、そしてららぽーとがあるのと似ていますね。もちろん柏の葉キャンパスのほうが三井単独事業感が強いため毛色は異なるものの売って終わりにならなさそうなのは良いことだと思います。「マンションを買う」というよりも「街を買う」という感覚です。
幕張ベイパークの相場ですが
・すぐに入居できる築浅中古 = 坪単価約250万円
・入居が約2年先の新築 = 坪単価約230万円
となっています。
これだけ見ると新築のほうがよく見えそうではありますが2年間の賃料、そして2年間で減らせる住宅ローン残債を含めると仲介手数料などを加味してもトントンとなりがちです。幕張ベイパークミッドスクエアタワーの入居が近づく頃には低層階ばかりとなっているわけで結局のところ高層階を買うには新築で入居までの時間を耐えるか、新築を諦めて中古にするかという状況がしばらく続きそうです。
クロス・スカイの低層階からミッド高層階への買い替えも多いでしょうから中古のマーケットとしては高層階有利な状況が続きそうです。ミッドスクエアタワーも階数ごとの価格差からして高層階のほうがおすすめしやすいですが出口戦略がすべてではないため高層階がお好きでないなら低層階にすべきでしょう。

幕張ベイパーク スカイグランドタワー
2020年築 海浜幕張駅徒歩13分
新築時の坪単価約215万円
現在の坪単価約250万円
幕張ベイパーク ミッドスクエアタワー
2023年10月竣工予定 海浜幕張駅徒歩13分
現在の坪単価230万円(新築販売中)
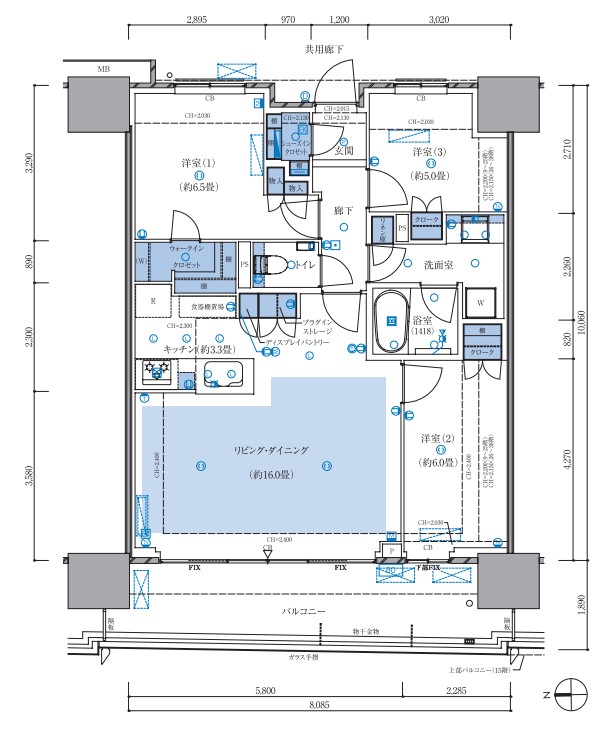
幕張ベイパークミッドスクエアタワー、第二期の価格と間取りを共有いたします!
※坪単価はトランクルーム面積含まず
※間取りの画像出典は公式HPより
W-70C/w-70ct 3LDK 70.34㎡
管理費(月額)15400円 修繕積立金(月額)9210円/管理費(月額)15580円 修繕積立金(月額)9320円

26階 5070万円 坪単価238万円
27階 5080万円 坪単価238万円
28階 5090万円 坪単価239万円
29階 5160万円 坪単価242万円
30階 5170万円 坪単価243万円
31階 5180万円 坪単価243万円
32階 5190万円 坪単価243万円
33階 5200万円 坪単価244万円
34階 5220万円 坪単価245万円
35階 5240万円 坪単価246万円
36階 5260万円 坪単価247万円
37階 5280万円 坪単価248万円
38階 5310万円 坪単価249万円
39階 5340万円 坪単価251万円
40階 5370万円 坪単価252万円
41階 5400万円 坪単価253万円
42階 5430万円 坪単価255万円
43階 5650万円 坪単価265万円
S-72I/S-72It 3LDK 72.42㎡
管理費(月額)15860円 修繕積立金(月額)9490円/管理費(月額)16040円 修繕積立金(月額)9590円

20階 5190万円 坪単価236万円
21階 5200万円 坪単価237万円
22階 5210万円 坪単価237万円
23階 5220万円 坪単価238万円
24階 5230万円 坪単価238万円
25階 5290万円 坪単価241万円
26階 5250万円 坪単価239万円
27階 5260万円 坪単価240万円
28階 5270万円 坪単価240万円
29階 5340万円 坪単価243万円
30階 5350万円 坪単価244万円
31階 5360万円 坪単価244万円
32階 5370万円 坪単価245万円
33階 5380万円 坪単価245万円
34階 5400万円 坪単価246万円
35階 5420万円 坪単価247万円
36階 5440万円 坪単価248万円
37階 5460万円 坪単価249万円
W-73D/W73Dt 3LDK 73.85㎡
管理費(月額)16170円 修繕積立金(月額)9670円/管理費(月額)16350円 修繕積立金(月額)9780円

15階 5000万円 坪単価223万円
16階 5060万円 坪単価226万円
17階 5120万円 坪単価229万円
18階 5170万円 坪単価231万円
19階 5210万円 坪単価233万円
W-76F/W-76Ft 3LDK 76.55㎡
管理費(月額)16760円 修繕積立金(月額)10030円/管理費(月額)16940円 修繕積立金(月額)10140円

9階 4790万円 坪単価206万円
10階 4850万円 坪単価209万円
11階 4900万円 坪単価211万円
12階 4950万円 坪単価213万円
13階 5000万円 坪単価215万円
14階 5050万円 坪単価218万円
15階 5200万円 坪単価224万円
16階 5250万円 坪単価226万円
17階 5350万円 坪単価231万円
18階 5370万円 坪単価231万円
19階 5390万円 坪単価232万円
W-76F´ 3LDK 76.55㎡
管理費(月額)16760円 修繕積立金(月額)10030円

6階 4670万円 坪単価201万円
7階 4700万円 坪単価203万円
8階 4740万円 坪単価204万円
W-80E´ 3LDK 80.56㎡
管理費(月額)17640円 修繕積立金(月額)10550円

6階 5100万円 坪単価209万円
7階 5150万円 坪単価211万円
8階 5200万円 坪単価213万円
W-80E/W-80Et 3LDK 80.56㎡
管理費(月額)17640円 修繕積立金(月額)10550円/管理費(月額)17820円 修繕積立金(月額)10660円

9階 5250万円 坪単価215万円
10階 5300万円 坪単価217万円
11階 5350万円 坪単価219万円
12階 5390万円 坪単価221万円
13階 5430万円 坪単価222万円
14階 5470万円 坪単価224万円
15階 5500万円 坪単価225万円
16階 5600万円 坪単価229万円
17階 5640万円 坪単価231万円
18階 5650万円 坪単価231万円
19階 5660万円 坪単価232万円
E-80N´ 3LDK 80.56㎡
管理費(月額)17640円 修繕積立金(月額)10550円

2階 4790万円 坪単価196万円
3階 4810万円 坪単価197万円
4階 4830万円 坪単価198万円
5階 4850万円 坪単価199万円
6階 4870万円 坪単価199万円
7階 4890万円 坪単価200万円
8階 4910万円 坪単価201万円
Ne-85Rb/Ne-85Rbt 3LDK 85.37㎡
管理費(月額)18700円 修繕積立金(月額)11180円/管理費(月額)18880円 修繕積立金(月額)11290円

29階 5910万円 坪単価228万円
30階 5940万円 坪単価230万円
31階 5970万円 坪単価231万円
Ne-85R/Ne85Rt 3LDK 85.37㎡
管理費(月額)18700円 修繕積立金(月額)11180円/管理費(月額)18880円 修繕積立金(月額)11290円

32階 6000万円 坪単価232万円
33階 6030万円 坪単価233万円
34階 6060万円 坪単価234万円
35階 6090万円 坪単価235万円
36階 6120万円 坪単価237万円
37階 6150万円 坪単価238万円
38階 6180万円 坪単価239万円
39階 6230万円 坪単価241万円
40階 6280万円 坪単価243万円
41階 6330万円 坪単価245万円
42階 6380万円 坪単価247万円
43階 6680万円 坪単価258万円
Se-91Lb/Se-91Lbt 4LDK 91.97㎡
管理費(月額)20140円 修繕積立金(月額)12050円/管理費(月額)20320円 修繕積立金(月額)12160円

2階 5890万円 坪単価211万円
3階 5890万円 坪単価211万円
4階 5920万円 坪単価212万円
5階 5950万円 坪単価213万円
Nw-95Ab/Nw-95Abt 4LDK 95.38㎡
管理費(月額)20890円 修繕積立金(月額)12490円/管理費(月額)21070円 修繕積立金(月額)12600円

2階 5550万円 坪単価192万円
3階 5600万円 坪単価194万円
4階 5700万円 坪単価197万円
5階 5780万円 坪単価200万円
Sw-98Gb 3LDK 98.51㎡
管理費(月額)21570円 修繕積立金(月額)12900円

2階 5890万円 坪単価197万円
3階 5890万円 坪単価197万円
4階 5940万円 坪単価199万円
5階 5990万円 坪単価201万円
階数よりも広さと価格のお求めやすさ優先の方にとっては角の低層階がかなり光って見えることでしょう。坪単価200万円前後で立派な角住戸を手にできるとは…
高層階優先(眺望優先)の方であっても選択肢の多い販売期となっています。
共働きでバリバリ都心通勤という方にはなかなか厳しく感じる立地ではあるのですが、テレワークが多めであったり、都心通勤であっても朝から晩までではない、もしくは通勤が大変でも住みたいと思えるのであれば前向き検討されるべき新築マンションだと思います。これだけ好条件なのに価格が現実的な新築マンション、ほんとに減りましたよね…
あくまでどちらかと言えばという話ではありますが、感覚としては新浦安と似ており支払いパツパツというよりかは余力を残せる方向けではあります。こればかりは個々の価値観や生活スタイル次第ではあるのですがベイタウンやベイパークにお住まいの方の生活スタイルとしては「ゆとり」があるのですよね。それは金銭的に~だけでなく時間であったり気持ちの面であったり。この辺りは街を訪れてみると感じるかなぁ~と思いますし、SNSなどでもなんとなく感じ取れるかと。
なので例えばですが東京湾岸エリアなど都内の高価格帯エリアでマンションを検討できるくらいの状況で幕張ベイパークを購入できる方なんかはかなりのベストマッチとなりやすいかと。住宅価格を抑えて部屋が広くなり生活にもさらにゆとりが生まれる~的な。
千葉の中ではけしてお安くはなく、なんならお隣の検見川浜から稲毛海岸あたりであればもう1000万円ほどお安く購入できます。とはいえ幕張ベイタウンと幕張ベイパークを選んだ方が検見川浜~稲毛海岸で検討するかといえば検討しない方ばかりでしょう。(新浦安だから千葉へ、海浜幕張だから千葉へという感覚)
言葉では伝わりにくい部分ばかりですので一度街へ訪れてみることをおすすめいたします!!
(インターナショナルスクールの送迎時間帯、とんでもねぇ車ばかりが列をなしているの笑います)
ラストは海浜幕張散歩!
JFA夢フィールド建設寄付のプレート!
あった!!
ほんの少しでもお役に立てたのであればとても嬉しい!! pic.twitter.com/h3VpI7YB1L
— マンションマニア (@mansionmania) May 18, 2022
ゴージャス茂野さん御用達の大人向け健康器具で開脚トレーニング!! pic.twitter.com/Bvg33tQD3z
— マンションマニア (@mansionmania) May 18, 2022
マンションマニアへ購入・売却相談
動画もご覧ください!
■海浜幕張散歩 2022年5月編
チャンネル登録もよろしくお願いいたします!

マンションマニア公式YouTubeチャンネル
マンションマニア公式Twitter
マンションマニア公式インスタグラム
関連記事
トリートヘアデザイン海浜幕張店で髪を切ってみた!~幕張ベイタウン~
スムログ記事
- もしもマンションマニアが一次取得ならこれを買う!! おすすめ新築マンション5選 2021年12月編
- お便り返し その403「ZEH-M Orientedはリセールバリューへ影響しますか? 海浜幕張・海老名・聖蹟桜ヶ丘・上福岡で検討中」【マンションマニア】
- お便り返し その531「年収650万円 独身 幕張ベイパークミッドスクエアタワーを検討中 車なしでも大丈夫そうですか?」【マンションマニア】
































コメントを残す