すまいよみです。
お便りをいただきました。
差出人: スーパー楕円
誰に答えて欲しいですか?
すまいよみ、住井はな
メッセージ本文:
初めまして。いつもスムログで勉強させていただいております。
このたび3LDKの部屋を購入しましたが、将来子どもを授かったときのことを見据えた間取り変更を検討しており、スムログブロガ ーの皆さまのご意見を伺いたくメッセージを送らせていただきまし た。
【属性】
夫(質問者):36歳
妻 :33歳
子ども :なし
【購入した部屋について】
物件 :※
タイプ:※
間取り:3LDK
広さ :71㎡
入居 :※
・図面上、LDは「※畳」との表記
・ただし、リビング部分の有効面積が小さく、リビング単体では目算で7畳程度
・3LDKの場合の想定用途は、居室①夫婦の寝室、居室②夫婦の書斎、居室③物置・多目的スペース
※ご相談者さまの希望により、情報を伏せています。
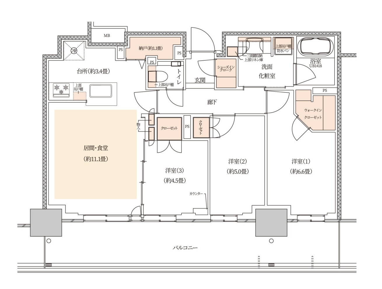
【間取り変更案】
リビングに隣接した独立居室(約4.5畳)をリビングへ取り込んで拡張(3LDK→2LDK)
【間取り変更を検討している理由】
もし子どもが生まれた場合、未就学のうちは広めのLDを確保した方が子育て環境として望ましいのではないかと思った次第です。
(同時に、広々とした解放感のあるリビングへの憧れもあります・・)
また、子ども部屋が必要になった際ですが、一般的なニーズは小学校低学年と考えると最短でも7~8年先となるため、 必要に迫られたときに2LDK→3LDKへ戻すリフォームを行な えば良いのでは・・という考えです。
(ウォールドア等の選択肢もありますが、この点についてはコストをかけて独立居室としたい考えです。)
上記について、スムログブロガーの皆さまとしては、未就学~小学校低学年までの子育て期を考えると、広いリビングの確保(2LD K)と、独立した多目的室の確保(3LDK)のどちらが望ましい とお考えになるか、ぜひご意見を伺いたいたく存じます。
何卒よろしくお願いいたします。
ありがとうございます!
以下、ご指定いただいた実際の間取り図を見て回答します。
結論、お2人(1人でも)が在宅ワークや自宅作業をする機会が少ない、もしくは機会が多くても、ワークスペースなど棟内にサードプレイスが豊富で快適に使えるのであれば、2LDKにした方が良いと思います。上記に該当しないのであれば、3LDKのままが良いかもしれません。
2LDKにする動機はおっしゃる通りと思います。私なら、隣の洋室③を抜いてLDと一体化した2LDKにします。洋室①を夫婦の寝室に、窓が無い洋室②は多目的室、兼そのうち(仮)子供部屋設定にします。
子供ができれば、おっしゃるとおり独立した子供部屋はしばらくいらないにしても、おもちゃや衣類などの収納が増え、形だけでもベッドを置いたり(病気で1人で寝かせる場合など)、ある程度の早い段階で(仮)子供部屋にする必要が出てきます。
以上を踏まえて、いったん、2LDKで話を進めます。
リビングと隣洋室③が連窓サッシでつながっているため、壁を抜けば、窓一面に視界が開けた解放的なリビングになります。
どうせやるなら、収納と仕切りの壁の部分も全て取っ払った方が良いと思います(扉は残す)。
部屋に戻す際は、再度収納を付けるなど少し費用はかさむと思います。撤去と部屋に戻す費用で300~400万円程度は見ておいた方が良いかもしません。
それと、ワイドスパンの住戸ですが、LDと洋室の境など天井部に梁は通ってなさそうでしょうか?
ウォールドアを避けたい理由は、将来、子供部屋を窓が無い洋室②ではなく、LD隣の洋室③(窓がある部屋)にしたい、そうした時にウォールドアではプライバシー性が心もとないなど配慮でしょうか。
小学校高学年くらいまでは、子供部屋にがっつり籠る子供は少なそうです。
子供部屋を早めに作ってあげても勉強はリビングでやりますし、寝るとき以外はリビングにでてきて家族団らんになる場合が多いように思います。
窓がある独立した部屋が必要になる、つまり、子供に「我」が芽生えてきて、プライバシー性がある明るい部屋で1人過ごしたくなるまでは、十分な月日を要すると思います(その子の個性にもよりますし、男の子と女の子でも違いそうです。女の子の方が「おませさん」かも)。
夫婦2人の時はもとより、子供ができても、リビングで団らんする時間が1日の中で一番多くなりますから、ソファやテーブル、テレビを置けるだけの空間でなく、より明るく広い、+アルファの空間(子供がおもちゃを広げて遊べる空間など)があったほうが快適です。
ですから、例えば2年後にお子さんが生まれると仮定しても、10年前後は、しっかりした子供部屋を作る必要性は薄いので、洋室③は入居時につぶして広くて明るいリビングにすることで、しばらく満足度が高い生活を送れると思います。
一方で、独立した3LDK案ですが、1部屋でも機能しなければ、住み始めると窮屈感と無駄を感じるようになります。
冒頭の話に戻りますが、共用施設にワークスペースなどサードプレイスがある、もしくは、夫婦2人が専有部で必要以上に作業や仕事をするタイプでないなら、加えて付随する荷物もそこまで多くないなら、2LDKにしてしまって良いのではと思えます。ゲストルームがあれば、独立した部屋が少なくても、そこで友人や親族に泊まってもらえます(肝心な土日にとりづらいことは百も承知です)。
最後に、私の家庭の例をあげます。我が家は家族3人。

「田の字型」70㎡前後の3LDK
いわゆる田の字型の3LDKで、LD横の洋室は、ウォールドアを開けてLDと一体化としています(テレビ台と、手前は子供が遊んだり、ちょっとした作業をするユーティリティスぺース)。
私の仕事は半日外出、半日自宅のような感じですが、在宅時、仕事はリビングでしています。家族がいて気が散るときは、共用部にワークができるラウンジ、スペースがあるのでそちらでやります。自宅内の他の部屋でやることはほとんどありません。ただし、リモート会議などが少し不便で、もう一つ作業部屋が欲しくなることもあります。妻は、パート業務で、特に自宅に1人の部屋を必要としていませんので、夫婦の寝室だけ。子供は高学年になり、ようやく子供部屋が機能するようになってきましたが、まだリビングで家族と一緒にいる時間が多く、勉強もリビングで父母と一緒にやっています。いずれにしても2LDKで快適。洋室を閉めて3LDKにするつもりはありません。
簡単ですが、以上です。
述べてきたことは生活スタイルの一例で、生活観はそれぞれ異なりますが、何か少しでも参考になれば幸いです。
























コメントを残す